新型引戸鎌錠
主な用途
内部出入口、倉庫、間仕切、浴室、トイレ(この製品は内部専用シリンダー錠です。指定建物錠ではありません。)
特長
従来品と比べ 薄い木製枠にも対応
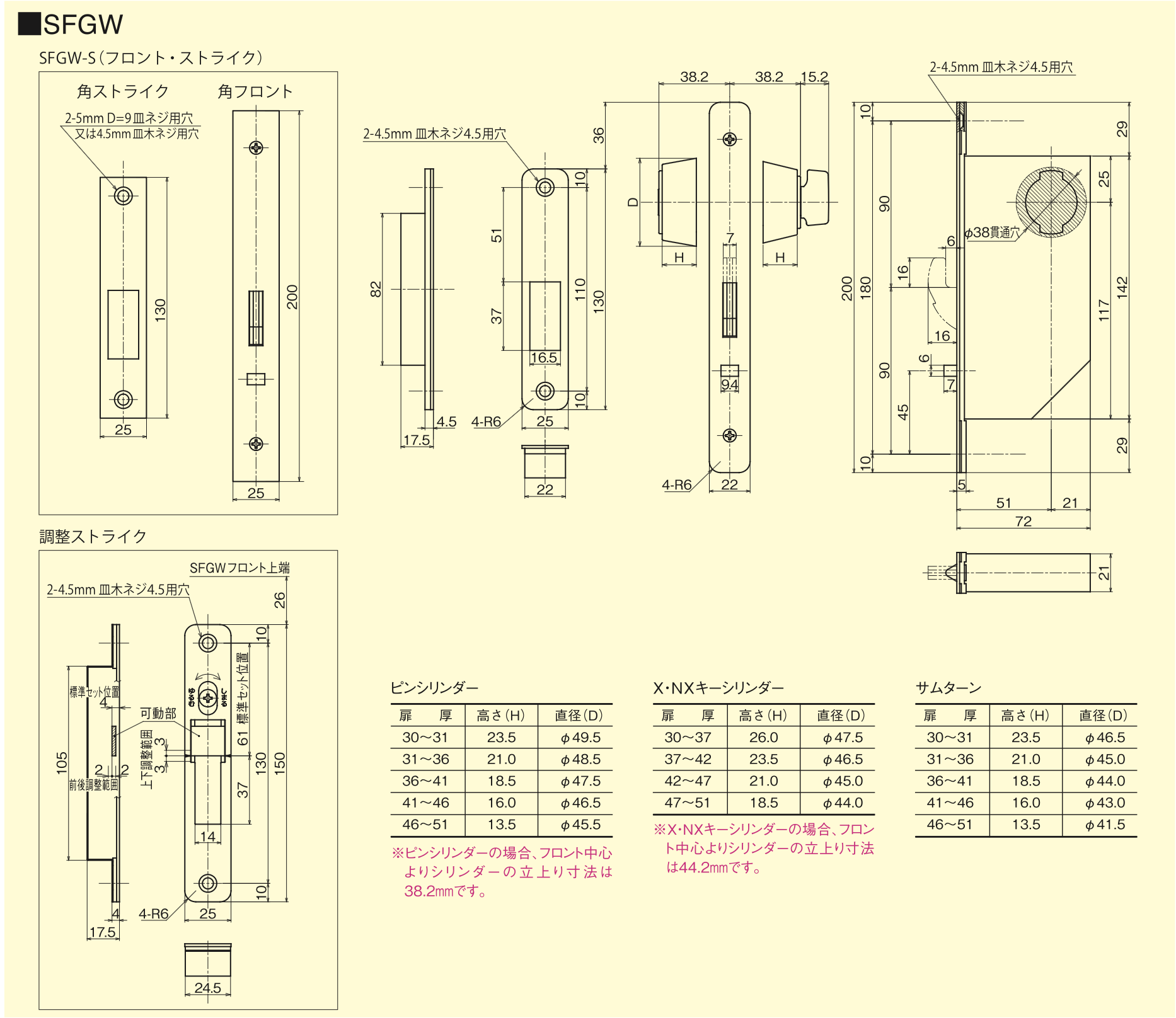
突出し 16mmのデッドボルト・深さ 17.5mmのストライクを採用。
※木製ドア用が標準となります。
カマの破損を防ぐトリガーボルト採用
扉が閉まらないとカマが出ないトリガーボルトを採用。カマを出した状態での閉扉を防止し、カマの破損を防ぎます。
デッドの当たりにゴムを使用した静音設計
デッドボルトの当たり部にゴムを使用した静音タイプ。
ルーター加工用(R6) 用フロント・ストライクを採用
角タイプのSFGW-Sもあります。(幅25mm)
仕様
SFGW | SFGW-S(鋼製ドア用) | |
---|---|---|
バックセット | 51mm | 51mm |
取付扉厚 | 30〜51mm※ | 30〜51mm※ |
シリンダー | 6本ピンシリンダー・X・NXキー シリンダー・MK・GMK・GGMK ・その他各種装置可能 | 6本ピンシリンダー・X・NXキー シリンダー・MK・GMK・GGMK ・その他各種装置可能 |
有効チリ寸法 | 2mm以下 | 2mm以下 |
フロント・ストライク | R6 | 角 |
- 扉厚に関しまして実際に取り付けられます扉厚を正確にご指示ください。
- カタログ表記以外の扉厚につきましてはお問い合わせください。
- BXシリンダー対応
- シリンダー:SLA,SDA共通
- サムターン:SLA,SDA共通

オプションで調整ストライク付(ーT、ーST)もあります。
上下 ±3mm、前後 ±2mm の調整が可能です。
ご注文例

注) X・NXシリンダー装着の場合はご記入ください。
機番一覧表

切欠外形図
